Zakup mieszkania lub budowa w stanie deweloperskiego to dopiero początek drogi do wymarzonego domu. Teraz zaczyna się etap najważniejszy, czyli wykończenie pustej przestrzeni i przekształcenie surowego wnętrza w najlepsze miejsce do życia, czyli własny dom. Zadanie jest duże i bardzo trudne. Dlatego po prostu trzeba się odpowiednio przygotować. A zatem: NAJPIERW PLANUJ – POTEM DZIAŁAJ.
Poniżej przeczytasz, jak dobrze zaplanować start, czyli o trzech najważniejszych rzeczach:
a. ustal swoje potrzeby
b. stwórz układ funkcjonalny
c. zaplanuj budżet
Działanie będzie przebiegać dużo sprawniej, gdy będziesz miała / miał dobrze ułożony plan.
Ustal swoje potrzeby
Potrzeba jest subiektywnym poczuciem braku lub niespełnienia. Potrzeby mogą być z różnych obszarów ( potrzeba spokoju, potrzeba wolności, potrzeba jedności, potrzeba wanny wolnostojącej ;-), ect.). Urządzając swoje wnętrze możemy spełnić wiele z naszych potrzeb. A ponieważ są to bardzo subiektywne odczucia, każdy z nas ma inne poczucie braku. Stąd tak ważne jest, aby poznać te elementy, które są DLA NAS ważne. Dzięki którym w nowym wnętrzu poczujemy się „jak w domu”.
A jak poznać swoje potrzeby? Szukając odpowiedzi na podstawowe pytania. Poniżej podam 7 takich pytań, które z powodzeniem się do tego nadadzą. I nada się jeszcze jedno – miejsce, w którym teraz mieszkasz. Dokładnie je przeanalizuj i niech będzie takim „placem boju”, dzięki któremu znajdziesz odpowiedzi na wiele pytań.
1. co lubisz we wnętrzu, w którym teraz mieszkasz
2. czego nie lubisz we wnętrzu, w którym aktualnie mieszkasz
3. czego Ci brakuje we wnętrzu, w którym aktualnie mieszkasz
4. co musisz bezwzględnie mieć w nowym wnętrzu
5. z czego możesz zrezygnować
6. jakie wnętrza są Ci bliskie
7. jakie kolory i faktury są Ci bliskie
Dokładne omówienie tych pytań znajdziesz w moim darmowym ebooku. Każde pytanie jest tutaj opatrzone obszernym komentarzem. Takim naprowadzeniem. Łatwej wówczas nazwać to, co jest ważne, aby wnętrze było kompletne.
Ebook ma 20 stron i otrzymasz go na maila w formacie PDF.
Po prostu zjedź na dół strony. Tam są wszelkie informacje, które potrzebuję, aby przesłać do Ciebie materiały.
Stwórz układ funkcjonalny
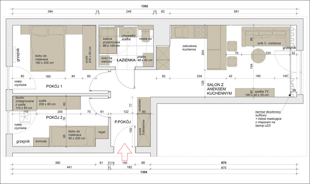
Układ funkcjonalny – czyli inwentaryzacja ( pomiar z natury ) wnętrza + naniesione na to meble i inne elementy wyposażenia wnętrza. Taki układ funkcjonalny z powodzeniem może być wykonany odręcznie. Ale MUSI być w skali. To ważne, aby wszystko było w jednakowych proporcjach. Tylko wówczas można prześledzić co dokładnie się zmieści, w jakich wymiarach i ile zostanie miejsca na komunikację.
Przy zakupie mieszkania takie układy funkcjonalne można otrzymać od dewelopera. Na rzucie jest pokazana propozycja aranżacji przestrzeni. Jedna z wielu. Ale UWAGA – często meble wrysowane w rzut od dewelopera nie są w skali. Mają zmniejszone proporcje, a przez to w małym mieszkaniu mieści się więcej mebli :-(. Taka nieuczciwa praktyka wprowadza w błąd. Mieszkanie wydaje się większe, niż jest w rzeczywistości. Ale o tym będzie w innym wpisie.
INWENTARYZACJA – czyli pomiar z natury z naniesieniem wszelkich otworów ( drzwi, okien), wnęk, występów.
UKŁAD FUNKCJONALNY – na sporządzonym wcześniej rzucie naniesione meble i inne elementy wyposażenia wnętrza. Z zachowaniem odpowiednich proporcji.
inwentaryzacja
układ funkcjonalny
Każde wnętrze ma wiele opcji układów funkcjonalnych. Nie warto poprzestawać na jednym. Pracując nad wnętrzem długo analizuję różne wersje. Wybieram z nich 2-3 układy, które omawiam z Inwestorami. Zdarza się, że bazą do dalszych prac jest nowa wersja układu, która jest połączeniem wszystkich trzech. Taka kompilacja :).
O czym trzeba pamiętać przy układaniu różnych wersji? Aby dobrać takie wielkości np. mebli, które nie będą zakłócały komfortowego i, przede wszystkim, bezpiecznego korzystania. Szczególnie ważne jest to w łazience, gdzie najczęściej na niewielkiej przestrzeni trzeba zmieścić wiele funkcji. Drugim pomieszczeniem, na które trzeba poświęcić więcej czasu przy planowaniu to kuchnia. Ale nie wolno też zapominać o sypialni, salonie, pokojach dzieci, garderobie, etc. Dużo tego. Na szczęście zostały opisane optymalne wymiary i odległości do każdego z tych pomieszczeń, aby było funkcjonalnie. Zaglądaj do mnie – będą na ten temat wpisy i inne materiały.
Budżet
Praca nad budżetem to nie tylko określenie, ile możesz wydać na urządzanie mieszkania. To jest oczywiście bardzo ważne i od tego trzeba zacząć. Ale praca nad budżetem to dokładne przeanalizowanie, ile możesz wydać na poszczególne rzeczy. A raczej przeanalizowanie, ile co kosztuje i w jakim standardzie możesz mieszkanie wykończyć. Warto zacząć od tego, na czym nie warto oszczędzać. Na co przeznaczyć większe środki, nawet kosztem np. mebli wolnostojących, które można dokupić w późniejszym czasie.
Popatrz na grafiki poniżej – są dwa typy elementów wykończeniowych, na które warto przeznaczyć więcej środków. Podałam przykładowe. To są np. stelaże, które są zabudowywane i nie ma do nich dostępu. No chyba, że kując ściany lub demontując zabudowy GK. To jest ogrzewanie podłogowe ( jeśli takie planujesz) lub oświetlenie wpuszczane w zabudowy. Ale także kafle, podłogi, drzwi, meble do zabudowy. Wszystko, co nie jest ruchome czy przenośne.
W tych grupach nie ma mebli, takich jak krzesła, stoły, komody, szafki, wieszaki, stojaki. Nie ma też mebli tapicerowanych, czy zasłon. To wszystko można dokupić później. Jeśli już nie wystarczy ( co przy takiej inflacji, może się zdarzyć, niestety). Ale … trzeba uważać na to, aby nie przyzwyczaić się do tymczasowych rozwiązań. Bo jak wiadomo, prowizorki bardzo często stają się rozwiązaniem ostatecznym. Niestety :-(.
A może więc rozwiązaniem będzie spanie na materacu i siedzenie na kartonach 😉 ?
